Promenade des anglais 3 rooms in a quiet area overlooking the courtyard SEA VIEW in perfect condition

  • 525,000€
Promenade, 06000, Nice
For Sale
Promenade des anglais 3 rooms in a quiet area overlooking the courtyard SEA VIEW in perfect condition
Promenade, 06000, Nice
  • 525,000€

Description

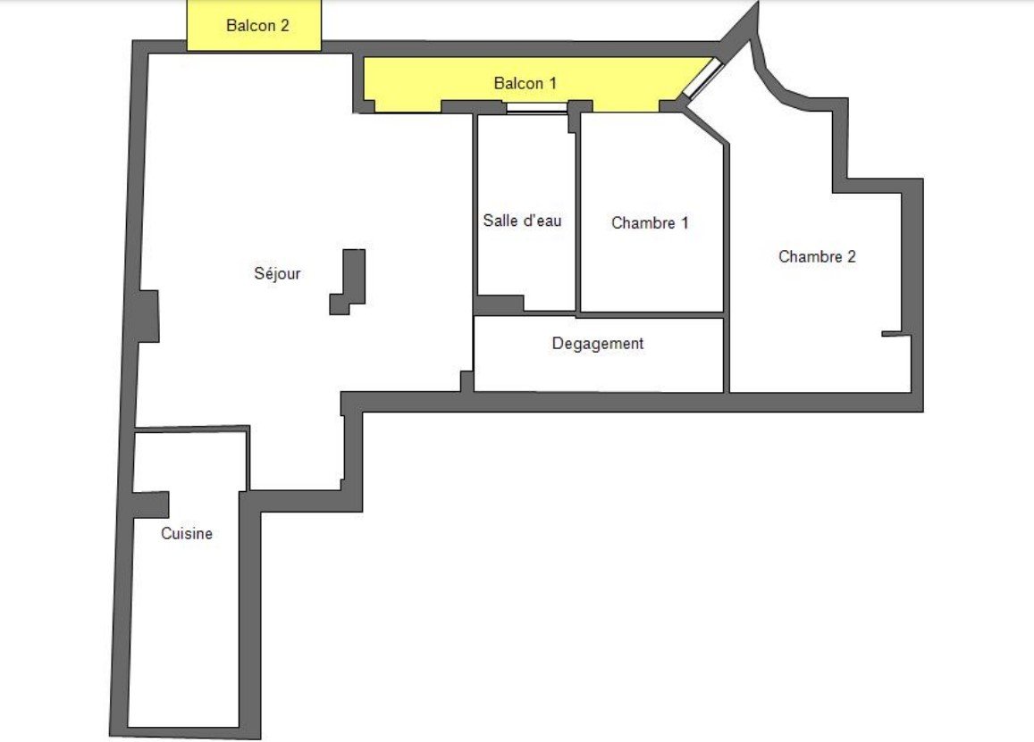
Exclusivity Promenade des Anglais: We present a magnificent 3-room apartment that will offer you both a sea view towards the Cap de Nice and calm, which is rarer in this area, as it is slightly set back in the building overlooking the courtyard. Perfect interior condition, living room of 31 m², ceiling height of about 3 meters, crossing, independent fitted kitchen and possibility of open kitchen with creation of an office or children’s room, original solid parquet flooring, double glazing, electric shutters, plenty of storage, shower room with a window, all on 2 balconies totaling about 6 m². Surface area of the Carrez law: 70.45 m². Contemplating the sea in peace and quiet while staying in the city center is an exception. What is just as important, for those who have a double housing and rental investment project in particular, is that the apartment is composed of 2 lots of apartments that have been joined together but which could easily (2 doors on the landing still existing) be redivided to live in a studio and rent a 2-room apartment for example, by creating an additional kitchen and a powder room + a partition in between. Building with caretaker, perfectly maintained, with elevator and double access Promenade and “rue de France” crossing. Current annual charges: 3,420 euros (i.e. 285 euros per month with heating, caretaker, lift, maintenance, common expenses). ENERGY CLASS D, CLIMATE CLASS D. Information on the risks to which this property is exposed is available on the Géorisques website: www.georisques.gouv.fr.

Details

Reference
GJoAP2
Bedrooms
2
Pièces
3
Surface
70.45 m2
Updated on February 20, 2026 at 9:31 am

Energetic Performance

logement très performant
consommation
(énergie primaire)
émissions
231
kWh/m².an
39*
kg CO₂/m².an
passoire
énergétique
A
B
C
D
E
F
G
logement extrêmement consommateur d'énergie
* Dont émissions de gaz à effet de serre
peu d'émissions de CO₂
A
B
C
D39kg CO₂/m².an
E
F
G
émissions de CO₂ très importantes

Estimation des coûts annuels d'énergie du logement

entre990 €et1 390 €par an

Prix moyens des énergies indexés au 01/01/2021 (abonnement compris).

Date du diagnostic : 2022

Les informations sur les risques auxquels ce bien est exposé sont disponibles sur le site Géorisques : https://www.georisques.gouv.fr

Localisation

  • Adress 111 Promenade des Anglais, 06000 Nice
  • City NICE
  • Postal code 06000
  • Neighborhood PROMENADE

Additional Details

  • Area: 70.45m²
  • Living room area: 31m²
  • Floor: 3
  • Number of floors: 7
  • Exposure: South
  • Heating: Collective
  • Heating mode: Gas
  • Hot water: Individual
  • Kitchen: Equiped
  • Lift: Yes
  • Number of WCs: 1
  • State: Good condition
  • Property tax: 2094€
  • Agency fee: Seller

Contact Information

  • Contact us about this property

  •  
  • or

    Call us
  •  
  • Contact us about this property

  •  
  • or

    Call us
  •  

Other Interesting Properties

Reviews for this property

0.0
0.0 out of 5 stars (based on 0 reviews)
Excellent0%
Very good0%
Average0%
Poor0%
Terrible0%

There are no reviews yet. Be the first one to write one.

Leave a review that could help its future buyer:

Compare listings

Compare
Alain GENTOLI
  • Alain GENTOLI
A question? Let's chat HERE! WhatsApp